東京コミュ+は、東京の西日暮里にある既存建物を改装し、
店舗、共同住宅、シェアハウスを複合して生まれ変わりました。
過去の記憶と新しい素材との対話による今までにない空間づくり。
リノベーションならではの良さを、東京コミュ+で体感してみてください。
5F – Share House
R-mix
Rmixとは、Rバンクの提案する男女にこだわらない人とヒトのつながりを大切にした暮らしかた。
「新旧の対話」空間のてっぺんに位置した暮らしがはじまります。
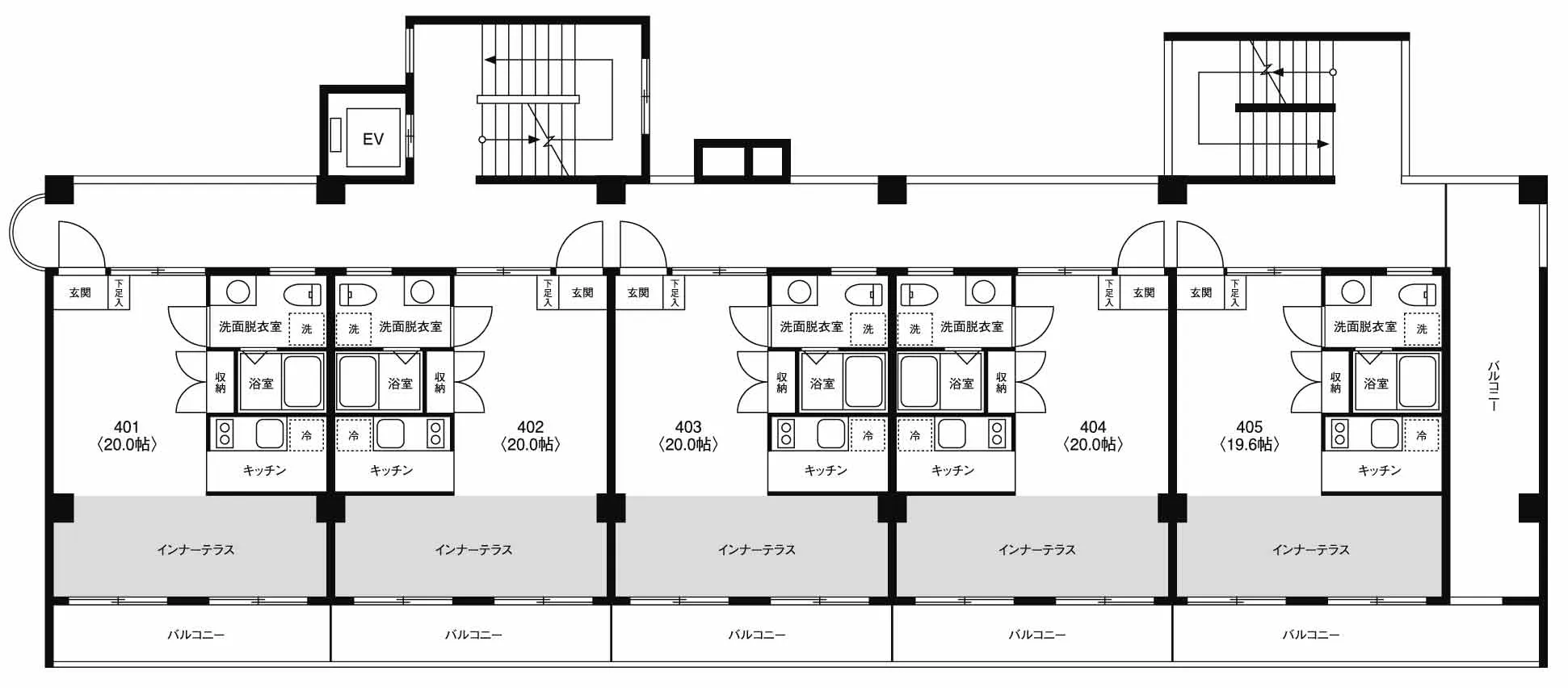
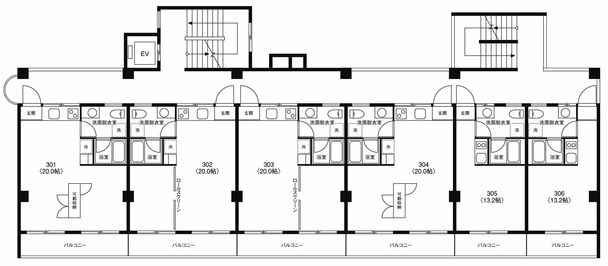
3 / 4F – Residence
ライフスタイルに合わせたプランニング
多様なライフスタイルや要望にフィットできる部屋は、内装に変化を与え、それぞれ違った空間を持っています。
ライフパターンは、インナーテラスがある部屋、可動収納がある部屋、ロールスクリーンで空間をフレキシブルに生活をまとめた部屋など、さまざまなライフスタイルに対応可能です。
賃料
-円
共益費
-円
契約形態
-年
礼金
-ヶ月
敷金
-ヶ月
更新料
-ヶ月分
間取り
1R / 1LDK
専有面積
21.87〜33.12m²
総戸数
11戸
設備
高速インターネット無料・バルコニー・造作キッチン・インターホン・無垢フローリング・ハンガーパイプ・追焚給湯・室内洗濯機置場・エアコン・IHコンロ・エレベーター・バストイレ別・宅配BOX
駐輪場
有り(月額220円/バイク:月額11,000円)
入居条件
・保証会社加入/火災保険加入
・契約形態2年(定期建物賃貸借契約)
・再契約料 新賃料の1ヶ月分
・24時間緊急サポート加入
(税込19,800円/2年)
・契約形態2年(定期建物賃貸借契約)
・再契約料 新賃料の1ヶ月分
・24時間緊急サポート加入
(税込19,800円/2年)
※一部ペット飼育可能(401,402号室)
2F – 音楽のいえ+
音楽家のための賃貸物件
新たに音楽を愛するひとのための住まいが誕生。音楽だけなく、色々なつながりがプラスされます。
設備は室内は、2014年3月にフルリノベーションを行いました。永田音響監修の防音設計は65DB以上の遮音性能を実現。24時間演奏できる防音室利用料無料。
賃料
-円
共益費
-円
契約形態
-年
礼金
-ヶ月
敷金
-ヶ月
更新料
-ヶ月分
間取り
2K(room1)・1K
専有面積
25.05〜34.89m²
総戸数
7戸
駐輪場
有り(月額220円/バイク:月額11,000円)
設備
Lesson1・2(防音室)使用料無償(24時間予約制)/玄関オートロック/IH付きミニキッチン/
高速インターネット無料/全室楽器演奏可能(8:00〜23:00)/遮音性能を高める為に全室二重サッシを採用
入居条件
・保証会社必加入 / 火災保険必加入
・24 時間緊急サポート加入(税込19,800 円 / 2 年)
・退去時にクリーニング費用実費を敷金より差引きさせていただきます。
※演奏可能な楽器は一部制限がございますので、ご相談ください。
・24 時間緊急サポート加入(税込19,800 円 / 2 年)
・退去時にクリーニング費用実費を敷金より差引きさせていただきます。
※演奏可能な楽器は一部制限がございますので、ご相談ください。
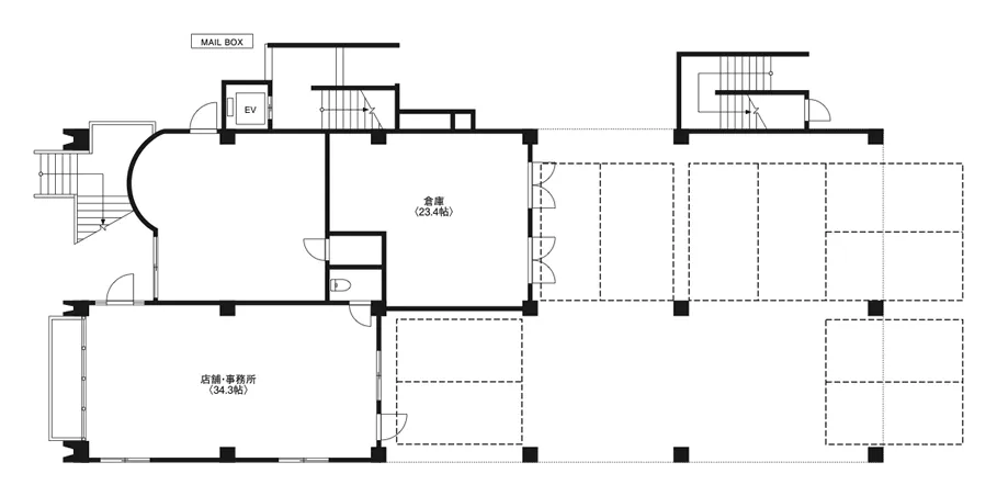
1F – Office / Shop / Parking
物件概要
物件名
東京コミュ+
所在地
東京都荒川区西日暮里6
構造規模
鉄筋コンクリート造 5階建
築年月
昭和46年12月
駐車場
あり(1Fコインパーキング)
共用設備
屋上デッキ(バーベキュー可)
